
Industrie- und Gewerbeareal nahe Nürnberg
26.392 m² Grundstück · über 10.400 m² Hallenfläche · 7 km westlich von Nürnberg · sofort nutzbar
Kaufpreis
Grundstück
Hallenfläche
Bürofläche
Exklusive Vorteile
m² Grundstück
m² Hallenfläche
bis Nürnberg
verfügbar
Auf einen Blick
Die wichtigsten Fakten
Grundstück
Hallenfläche
Bürofläche
Wohnfläche
Lage
Verfügbar
Vertrauen & Erfahrung
Zahlen, die überzeugen
Grundstück
Hallenfläche
Wohnen
bis Nürnberg
Objektbeschreibung
Warum dieses Objekt?
Das angebotene Industrie- und Gewerbeareal liegt in hochattraktiver Gewerbelage ca. 7 km westlich von Nürnberg. Die Anbindung an das überregionale Verkehrsnetz ermöglicht eine schnelle Erreichbarkeit der Metropolregion Nürnberg und der umliegenden Wirtschaftsstandorte.
Auf dem 26.392 m² großen Grundstück stehen über 10.400 m² Hallenfläche, ein mehrgeschossiges Büro- und Verwaltungsgebäude (ca. 320 m²) mit Sozial- und Sanitärräumen, Magazin und Laborflächen sowie ein Wohngebäude mit ca. 462 m² Wohnfläche. Ergänzt wird das Areal durch großzügige Freilager- und Rangierflächen.
Die Lage eignet sich ideal für Produktions- und Verwertungsbetriebe, Logistik & Lager, Metall- und Recyclingwirtschaft, Handwerks- und Industriebetriebe sowie für Investoren mit Entwicklungs- oder Umnutzungskonzepten (Weiterbetrieb, Teil-/Vollvermietung, Multi-Tenant-Gewerbepark).
Highlights
26.392 m² Gewerbegrundstück in der Metropolregion Nürnberg
Über 10.400 m² überdachte Hallenfläche — mehrere Hallen
Multi-Tenant-Potenzial: Produktion, Logistik, Recycling, Gewerbe
Bestand: Büro-, Sozial-, Labor- und Wohngebäude auf dem Areal
Technische Ausstattung: Waagen, Trafostation, Tankanlagen, Stromaggregat
7 km westlich von Nürnberg — hervorragende Verkehrsanbindung
Objektdaten
Im Detail
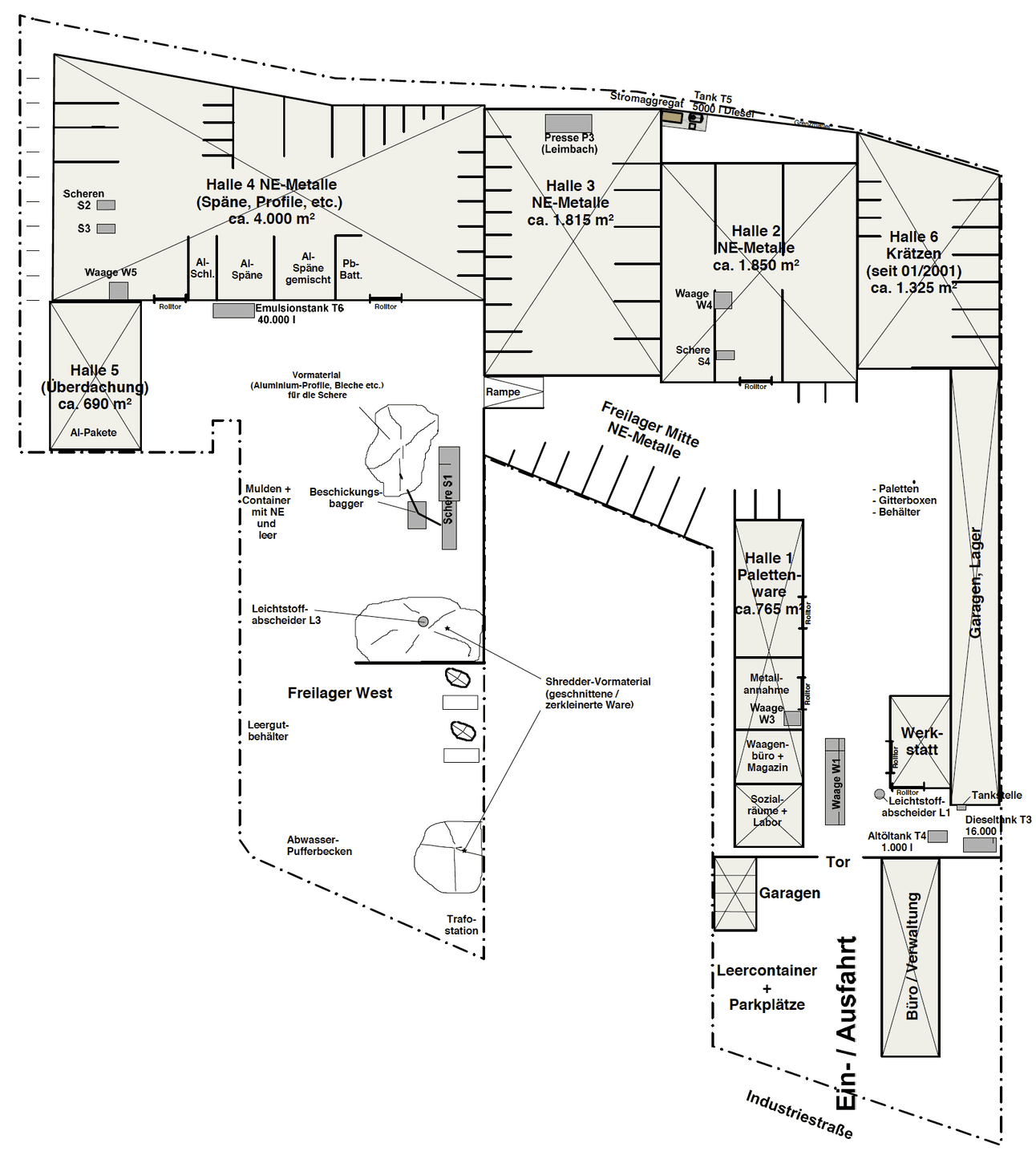
Grundrisse
Raumaufteilung im Detail
Klicken Sie auf einen Grundriss, um ihn in voller Größe zu betrachten.
Investment
Warum hier investieren?
Hattersheim am Main bietet ideale Voraussetzungen für eine nachhaltige Kapitalanlage mit attraktiver Rendite.
Metropolregion Nürnberg
Nürnberg zählt zu den stärksten Wirtschaftsräumen Süddeutschlands — hohe Nachfrage nach Industrie- und Gewerbeflächen.
Über 10.400 m² Hallen
Mehrere Hallen auf einem Grundstück — ideal für Multi-Tenant-Konzepte, Logistik oder Eigennutzung.
Entwicklungspotenzial
Weiterbetrieb, Teil-/Vollvermietung oder Umstrukturierung zum Multi-Tenant-Gewerbepark — maximale Flexibilität.
Komplett-Infrastruktur
Waagen (W3/W4/W5), Trafostation, Tankanlagen, Stromaggregat, Werkstatt, Abwasser-Pufferbecken — einfach einziehen.
Wohnraum inklusive
462 m² Wohnfläche auf dem Areal — ideal für Betriebsleiter, Mitarbeiter oder als vermietbare Zusatzrendite.
Sofort nutzbar
Bestand ist betriebsbereit — keine Wartezeit, kein Genehmigungs-Risiko, sofort Cashflow generieren.
Impressionen
Bildergalerie

Grundstück Luftbild

Abstell- und Parkmöglichkeiten

Große Freifläche

Weitere Freifläche

Überdachte Halle

Weitere Ansicht

Hallenansicht

Halleneinfahrt

Kleine Halle

Hofeinfahrt

Weitere Freifläche

Zweite überdachte Halle

Große Halle

Details Halle

Waage in Halle

Wohngebäude und Hallen
Zusammen mit
Unser Netzwerk
Marken, Partner und Kooperationen, die unsere Projekte tragen
Kontakt
Interesse geweckt?
Vereinbaren Sie jetzt Ihren persönlichen Besichtigungstermin. Wir stehen Ihnen für alle Fragen zur Verfügung.
Ihr Ansprechpartner
Ignas Ambrazevicius
Immo A+++ | Delt GmbH



