
DG-Wohnung Pfarrgasse 16 — 4Zi · 77,03 m²
4-Zimmer-Wohnung — Pfarrgasse 16, Offenbach-Bieber
Kaufpreis
Wohnfläche
Zimmer
Etage
Exklusive Vorteile
Kaufpreis saniert
Wohnfläche
DG · bezugsfertig
Für Käufer
Auf einen Blick
Die wichtigsten Fakten
Wohnfläche
Zimmer
Etage
Baujahr
Zustand
Provision
Vertrauen & Erfahrung
Zahlen, die überzeugen
Wohnfläche
Zimmer
Baujahr
Kaufpreis
Objektbeschreibung
Warum dieses Objekt?
Provisionfrei!!! Diese moderne Eigentumswohnung mit ca. 77,03 m² Wohnfläche befindet sich in einer ruhigen und beliebten Wohnlage von Offenbach-Bieber. Das Gebäude wird derzeit umfassend saniert, sodass die Wohnung in rund zwei Monate in neuem Glanz fertiggestellt und bezugsfertig sein wird.
Aktuell haben Sie die Möglichkeit, die Wohnung bereits jetzt zum attraktiven Kaufpreis von 260.000 € zu erwerben – noch bevor die Sanierung vollständig abgeschlossen ist. Auf Wunsch können unsere erfahrenen Partner die komplette Fertigstellung für Sie übernehmen. Damit erhalten Sie eine vollständig sanierte Wohnung im Wert von rund 300.000 €, exakt so, wie sie in den Visualisierungen dargestellt ist.
Highlights
Frisch saniert — bezugsfertig, Erstbezug nach Sanierung
Provisionsfrei für Käufer
4 Zimmer auf 77,03 m² Wohnfläche
Ruhige Lage in Offenbach-Bieber — Familienviertel
20 Min. mit der S-Bahn nach Frankfurt HBF
Objektdaten
Im Detail
Investment
Warum hier investieren?
Hattersheim am Main bietet ideale Voraussetzungen für eine nachhaltige Kapitalanlage mit attraktiver Rendite.
Erstbezug nach Sanierung
Kernsanierung abgeschlossen — keine weiteren Investitionen nötig. Neue Küche, neues Bad, moderne Böden.
Bieber als Premium-Lage
Ruhiger Familienstadtteil von Offenbach mit Altbau-Charme, Schulen, Kitas, Grünflächen.
S-Bahn-Anbindung
20 Min. zur Frankfurter Innenstadt — Top-Argument für Pendler-Mieter.
Provisionsfrei für Käufer
Kein Makler-Aufschlag — direkter Kauf spart mehrere Tausend Euro Nebenkosten.
Komplett-Paket möglich
Alle 4 Einheiten der Pfarrgasse 16 als Sammelkauf erwerbbar — Preisvorteil für Investoren.
Altbau-AfA mit Sanierungsanteil
Baujahr 1910 + moderne Kernsanierung — attraktive steuerliche Abschreibungen (AfA auf Sanierungskosten).
Impressionen
Bildergalerie

Wohnzimmer

Kinderzimmer

Schlafzimmer

Bad 1

Küche

Bad 2

Sclafzimmer 2

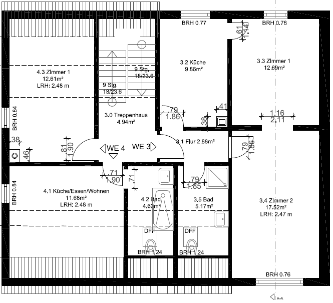
DG Grundriss 77,03 qm
Vollständiges Exposé
Alle Details auf einen Blick
Laden Sie das komplette Exposé als PDF — mit allen Fotos, Plänen und der Investment-Kalkulation.
Exposé auf Immowelt ansehenZusammen mit
Unser Netzwerk
Marken, Partner und Kooperationen, die unsere Projekte tragen
Kontakt
Interesse geweckt?
Vereinbaren Sie jetzt Ihren persönlichen Besichtigungstermin. Wir stehen Ihnen für alle Fragen zur Verfügung.
Ihr Ansprechpartner
Ignas Ambrazevicius
Immo A+++ | Delt GmbH



