
EG-Wohnung Pfarrgasse 16 — 3Zi · 70,28 m²
3-Zimmer-Wohnung — Pfarrgasse 16, Offenbach-Bieber — frisch saniert, bezugsfertig
Kaufpreis
Wohnfläche
Zimmer
Etage
Exklusive Vorteile
Kaufpreis saniert
Wohnfläche
EG · bezugsfertig
Für Käufer
Auf einen Blick
Die wichtigsten Fakten
Wohnfläche
Zimmer
Etage
Baujahr
Rendite
Kaltmiete
Vertrauen & Erfahrung
Zahlen, die überzeugen
Wohnfläche
Rendite p.a.
Baujahr
Kaufpreis
Objektbeschreibung
Warum dieses Objekt?
Diese traumhafte und vollständig sanierte Eigentumswohnung mit einer Wohnfläche von etwa 70,28 Quadratmetern befindet sich im beliebten Stadtteil Offenbach-Bieber, in einer ruhigen und gepflegten Wohnlage. Die Sanierung wurde vor Kurzem abgeschlossen – die Wohnung präsentiert sich heute in einem hochwertigen, modernen Zustand und ist vollständig neu möbliert. Sie eignet sich sowohl für Kapitalanleger als auch für Eigennutzer.
Die Wohnung ist derzeit vermietet und erzielt eine monatliche Kaltmiete von 1.200 Euro sowie 225 Euro Nebenkosten. Bei Eigennutzung besteht eine klare und schriftlich bestätigte Vereinbarung: Die Mieter geben die Wohnung nach Ihrem Wunsch frei, sodass Sie die Immobilie zeitnah selbst beziehen können.
Der Kaufpreis beträgt 299.999 Euro, provisionsfrei.
Zusätzliche Option im selben Haus Im selben Gebäude werden aktuell noch zwei weitere Wohnungen im Obergeschoss und Dachgeschoss hochwertig saniert und kurzfristig fertiggestellt. Bei Interesse an größeren oder zusätzlichen Wohneinheiten können diese ebenfalls erworben werden – ideal für Anleger, Familien oder Mehrgenerationenlösungen.
Highlights
Frisch saniert — bezugsfertig, Erstbezug nach Sanierung
Provisionsfrei für Käufer
Aktuell vermietet für 1200 € Kaltmiete — bei Eigennutzung schriftliche Freigabe des Mieters
3 Zimmer auf 70,28 m² Wohnfläche
Ruhige Lage in Offenbach-Bieber — Familienviertel
20 Min. mit der S-Bahn nach Frankfurt HBF
Zentrale Öl-Heizung — modernisierbar für zusätzliche Wertsteigerung
Objektdaten
Im Detail
Für Investoren
Rendite-Übersicht
Brutto-Rendite p.a.
Jahresmieteinnahmen
Miete pro m²
Kaufpreis pro m²
360° Tour
Virtueller Rundgang
Virtueller 360° Rundgang — EG Pfarrgasse 16
Interaktiv — bewegen Sie sich frei durchs Objekt
Investment
Warum hier investieren?
Hattersheim am Main bietet ideale Voraussetzungen für eine nachhaltige Kapitalanlage mit attraktiver Rendite.
Erstbezug nach Sanierung
Kernsanierung abgeschlossen — keine weiteren Investitionen nötig. Neue Küche, neues Bad, moderne Böden.
Bieber als Premium-Lage
Ruhiger Familienstadtteil von Offenbach mit Altbau-Charme, Schulen, Kitas, Grünflächen.
S-Bahn-Anbindung
20 Min. zur Frankfurter Innenstadt — Top-Argument für Pendler-Mieter.
Provisionsfrei für Käufer
Kein Makler-Aufschlag — direkter Kauf spart mehrere Tausend Euro Nebenkosten.
Komplett-Paket möglich
Alle 4 Einheiten der Pfarrgasse 16 als Sammelkauf erwerbbar — Preisvorteil für Investoren.
Altbau-AfA mit Sanierungsanteil
Baujahr 1910 + moderne Kernsanierung — attraktive steuerliche Abschreibungen (AfA auf Sanierungskosten).
Impressionen
Bildergalerie

Wohnzimmer

Kinderzimmer

Kinderzimmer 2

Schlafzimmer

Schlafzimmer 2

Arbeitszimmer

Arbeitszimmer 2

Küche

Bad

Flur

Flur 2

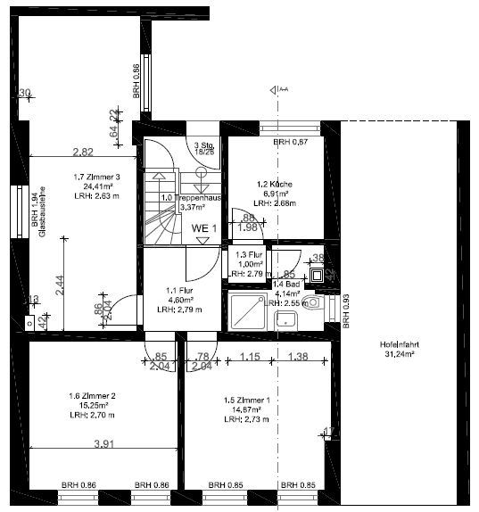
EG Grundriss 71,18 qm
Vollständiges Exposé
Alle Details auf einen Blick
Laden Sie das komplette Exposé als PDF — mit allen Fotos, Plänen und der Investment-Kalkulation.
Exposé auf Immowelt ansehenZusammen mit
Unser Netzwerk
Marken, Partner und Kooperationen, die unsere Projekte tragen
Kontakt
Interesse geweckt?
Vereinbaren Sie jetzt Ihren persönlichen Besichtigungstermin. Wir stehen Ihnen für alle Fragen zur Verfügung.
Ihr Ansprechpartner
Ignas Ambrazevicius
Immo A+++ | Delt GmbH



