
1. OG-Wohnung Pfarrgasse 16 — 4Zi · 93,97 m²
4-Zimmer-Wohnung — Pfarrgasse 16, Offenbach-Bieber
Kaufpreis
Wohnfläche
Zimmer
Etage
Exklusive Vorteile
Kaufpreis saniert
Wohnfläche
1. OG · bezugsfertig
Für Käufer
Auf einen Blick
Die wichtigsten Fakten
Wohnfläche
Zimmer
Etage
Baujahr
Zustand
Provision
Vertrauen & Erfahrung
Zahlen, die überzeugen
Wohnfläche
Zimmer
Baujahr
Kaufpreis
Objektbeschreibung
Warum dieses Objekt?
Provisionfrei!!! Diese moderne und vollständig sanierte Eigentumswohnung mit ca. 93,97 Quadratmetern Wohnfläche befindet sich in einer ruhigen und beliebten Wohnlage von Offenbach-Bieber.
Das Gebäude sowie die Wohnung wurden umfassend und hochwertig saniert und präsentieren sich heute in einem neuwertigen, bezugsfertigen Zustand. Sämtliche Sanierungsarbeiten wurden abgeschlossen, sodass die Wohnung sofort genutzt oder vermietet werden kann.
Der aktuelle Kaufpreis beträgt 349.000 Euro. Die Immobilie eignet sich sowohl für Eigennutzer als auch für Kapitalanleger, die Wert auf Qualität, Lage und nachhaltige Wertstabilität legen.
Highlights
Frisch saniert — bezugsfertig, Erstbezug nach Sanierung
Provisionsfrei für Käufer
4 Zimmer auf 93,97 m² Wohnfläche
Ruhige Lage in Offenbach-Bieber — Familienviertel
20 Min. mit der S-Bahn nach Frankfurt HBF
Objektdaten
Im Detail
Investment
Warum hier investieren?
Hattersheim am Main bietet ideale Voraussetzungen für eine nachhaltige Kapitalanlage mit attraktiver Rendite.
Erstbezug nach Sanierung
Kernsanierung abgeschlossen — keine weiteren Investitionen nötig. Neue Küche, neues Bad, moderne Böden.
Bieber als Premium-Lage
Ruhiger Familienstadtteil von Offenbach mit Altbau-Charme, Schulen, Kitas, Grünflächen.
S-Bahn-Anbindung
20 Min. zur Frankfurter Innenstadt — Top-Argument für Pendler-Mieter.
Provisionsfrei für Käufer
Kein Makler-Aufschlag — direkter Kauf spart mehrere Tausend Euro Nebenkosten.
Komplett-Paket möglich
Alle 4 Einheiten der Pfarrgasse 16 als Sammelkauf erwerbbar — Preisvorteil für Investoren.
Altbau-AfA mit Sanierungsanteil
Baujahr 1910 + moderne Kernsanierung — attraktive steuerliche Abschreibungen (AfA auf Sanierungskosten).
Impressionen
Bildergalerie

Ess - Wohnzimmer

Schlafzimmer 2

Ess - Wohnzimmer 3

Ess - Wohnzimmer 2

Wohnzimmer

Schlafzimmer

Flur

Kinderzimmer

Kinderzimmer

Küche

Küche

Bad

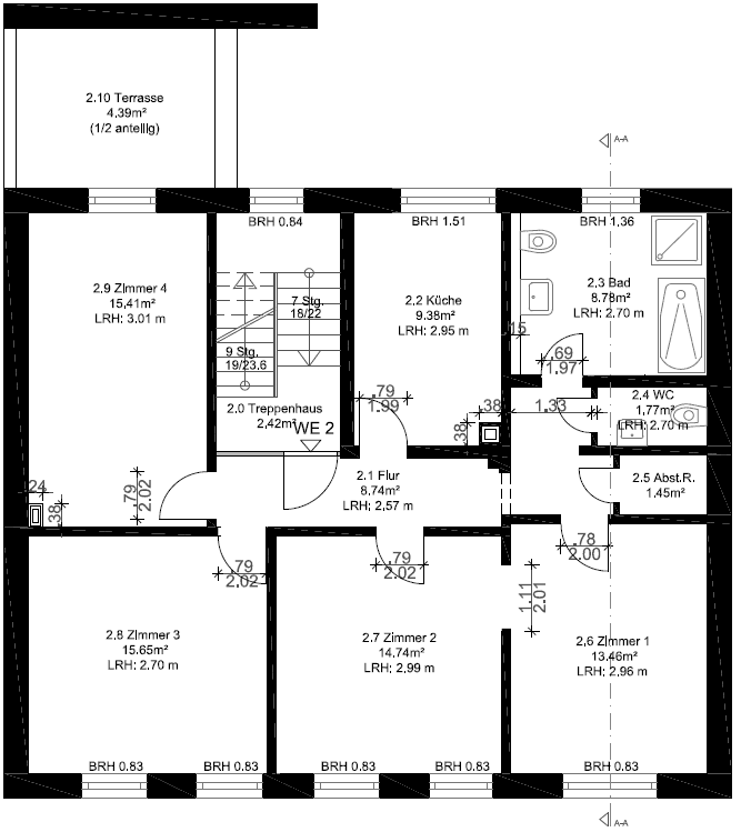
OG Grundriss 93,77 qm
Vollständiges Exposé
Alle Details auf einen Blick
Laden Sie das komplette Exposé als PDF — mit allen Fotos, Plänen und der Investment-Kalkulation.
Exposé auf Immowelt ansehenZusammen mit
Unser Netzwerk
Marken, Partner und Kooperationen, die unsere Projekte tragen
Kontakt
Interesse geweckt?
Vereinbaren Sie jetzt Ihren persönlichen Besichtigungstermin. Wir stehen Ihnen für alle Fragen zur Verfügung.
Ihr Ansprechpartner
Ignas Ambrazevicius
Immo A+++ | Delt GmbH



